Kontajnerový modul S01
Malý obytný kontajner prispôsobený na mieru podľa využitia.
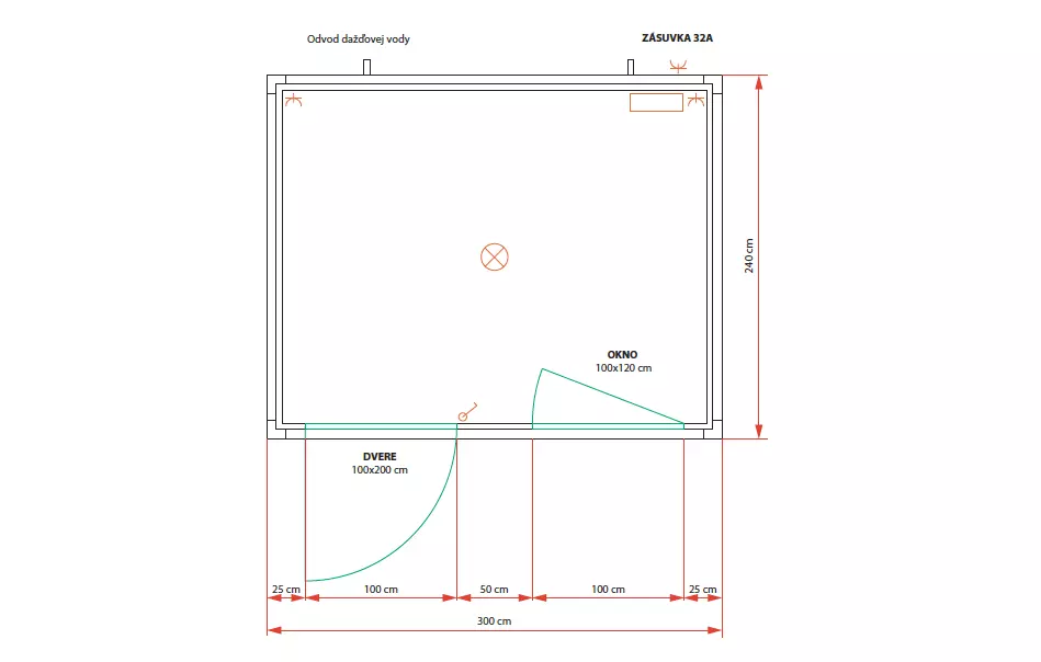
Malý kontajner S01 sa často využíva ako vrátnica, malá kancelária či zázemie pre zamestnancov. Má veľké plastové okno a zateplené plastové exteriérové dvere. Tento modul je vyrobený v rozmeroch 300x240cm zo zvaraného oceľového rámu (viď. ilustračné foto). Dostupné sú biele (RAL9002) sendvičové panely (50mm) a biele (RAL9002) rámy a taktiež príplatkové sendvičové panely s imitáciou dreva alebo v antracite. Rámy vieme taktiež vyhotoviť v rôznych farbách. Kontajner má kompletnú elektroinštaláciu realizovanú našími certifikovanými elektrikármi, ktorú vieme prispôsobiť podľa požiadaviek zákazníka. Na modul vieme osadiť väčšie okno, roletu, mreže, hlinníkové presklenné dvere, klimatizáciu a podobne. Dažďová voda je odvádzaná zabudovaným systémom v konštrukcii.
Máte zaujem alebo otázky?
Pre bližsie informácie o kontajnerovom module S01 nás neváhajte kontaktovať alebo sa prídite osobne pozrieť.











